• Calle Manuel de Guirior 762 - Pueblo Libre

Fase de Estudio (Pre-Inversión)

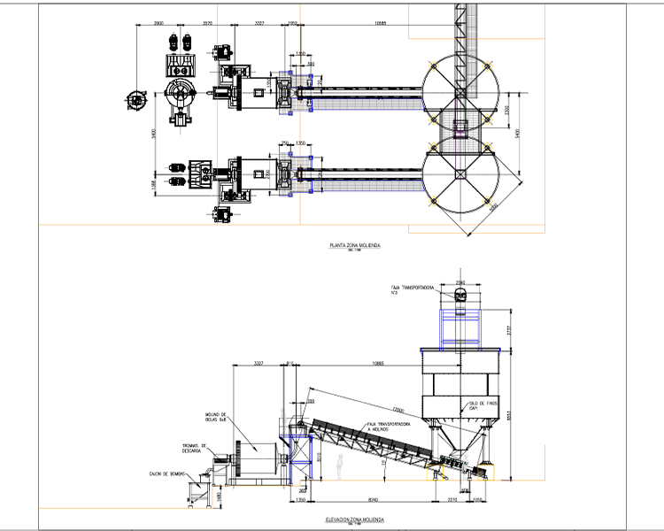
Ofrecemos servicios especializados en la elaboración de anteproyectos, ingeniería conceptual y estudios de factibilidad. Analizamos técnica y económicamente tus iniciativas desde las etapas más tempranas, brindando una visión clara y precisa para la toma de decisiones estratégicas..

Desde sistemas de transporte de mineral, plantas de procesamiento, hasta infraestructura auxiliar, nuestros estudios consideran las condiciones reales de operación, normativa vigente y criterios de sostenibilidad. Impulsa tu operación minera desde el diseño. Nosotros te acompañamos desde el inicio.

servicio de ingeniería y diseño
servicio de ingeniería y diseño